Call Today
718-554-0257
Toggle navigation
One Stop Multi Service, Inc.
Buy
Featured Listings
Homes for Sale
Condos/CoOps
Commercial
Land
Mortgage Calculator
Sell
Planning to Sell
Home Worth
Our Team
State Disclosures
Fair Housing Notice
Standardized Operating Procedure
Reasonable Accommodations Modifications
SOP
About
Contact
747 Flushing Avenue, Bedford Stuyvesant, NY 11206
Photos
Map
Print
Contact
Mortgage
Description:
7231978
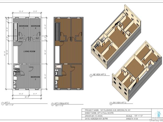
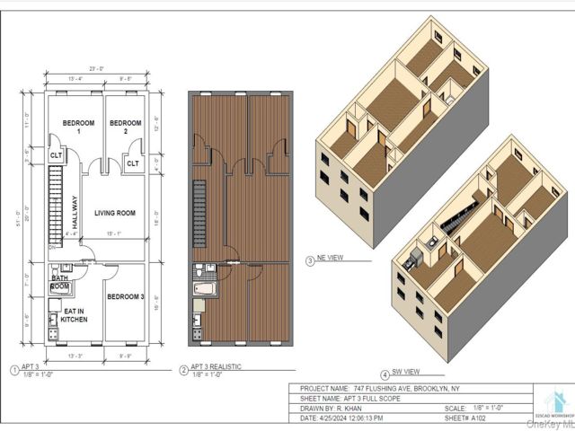
EXCEPTIONAL MIXED-USE BUILDING FOR SALE - PRIME EAST WILLIAMSBURG / BROADWAY TRIANGLE.
Details:
Families:
3
Property Type:
Commercial
Acres:
0.04
Built:
1931
Financials:
Price:
$2,499,988
Taxes:
$4,577
One Stop Multi Service, Inc.
Hans Campana
Office: 718-554-0257
Contact