Call Today

516-575-7500

43-06 34 Avenue, Astoria, NY 11101


Description: 7264699
   This well-positioned asset is a rare find that offers investors an opportunity to acquire a free-market, income-producing property in one of Queensâ?? most desirable and rapidly growing neighborhoods. The building features a strong tenant mix and consistent cash flow, making it an ideal long-term hold for investors seeking stability and appreciation.

Details:
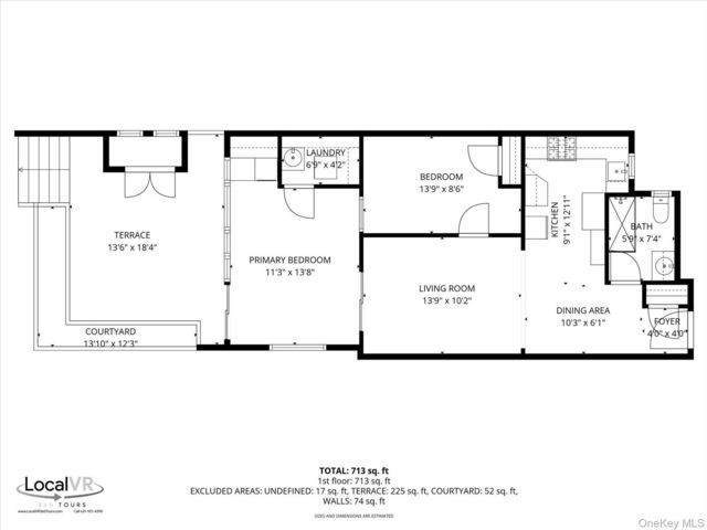
   Families: 4
   Bedrooms: 5
   Bathrooms: 3
   Property Type: House
   Lot Size: 20 x 105
   Acres: 0.05
   Built: 1928
   School District: Queens 30

Financials:
   Price: $2,800,000
   Taxes: $35,354

Charles Rutenberg Realty
Contact Office
Office: 516-575-7500

Contact